In 2024, Bali remained one of the top three global destinations for digital nomads and expats, with long-term stays growing by over 30% year-over-year. Yet while tourism rebounds and land prices climb, high-quality real estate projects with both aesthetic value and investment potential remain scarce.
This is an ideal moment to introduce ROOTS Villa 1, a premier construction investment opportunity in Ubud, Bali. Binaryx platform will tokenize this luxury villa priced at $303,000, with sales starting on May 22, 2025 (17:00 UTC). The project is in its early stages — the land has been acquired and site preparation is underway. Investors can expect attractive returns, with construction ROI up to 26.07% as well as APR estimated at 22.35% by the end of the construction, reflecting the villa’s prime location and high rental potential.
ROOTS Villa 1 harmonizes traditional Javanese Joglo architecture with contemporary design, offering 130m² of 2-bedroom living space set in lush surroundings. This is more than an investment; it’s a chance to co-own a thoughtfully crafted, high-quality Bali residence designed for long-term value. And most importantly, the land was secured at a pre-agreed price six months before purchase — during which its market value doubled. This means the project is already worth significantly more than its original cost, creating built-in value for investors from day one.
Let’s explore the details of this promising opportunity.
Investment Highlights
- Location: Ubud, Central Bali – serene, in-demand, and growing
- Leasehold Ownership: 29+10 years
- Construction APR: Up to 22.35%
- Construction ROI: Up to 26.07%
- Exit Price: $353,000 vs. $303,000 construction price
- Exit Date: July 22, 2026 (15-month term)
- Token Entry Point: From $28 to $31.62 depending on the phase
- Instagram-ready design: High photo/video appeal, potential for influencer-driven rental bookings
- Unique concept: Joglo-inspired architecture reimagined through modern lenses
Composition of the Complex
ROOTS is a standalone luxury villa tucked into the emerald landscapes of central Ubud. Designed by a team of award-winning architects — including internationally recognized studios and notable Ukrainian designers — the project embodies a rare creative synergy. This is not a multi-unit development, but a high-conviction boutique property designed to feel like a private retreat in nature — perfect for digital nomads, wellness enthusiasts, and high-end renters looking for something different.

The architectural concept is a modern interpretation of the Joglo, the traditional Javanese home — known for its soaring central pavilion and symbolic layout. ROOTS embraces this heritage while simplifying forms into clean geometries and applying a calm, tactile palette.

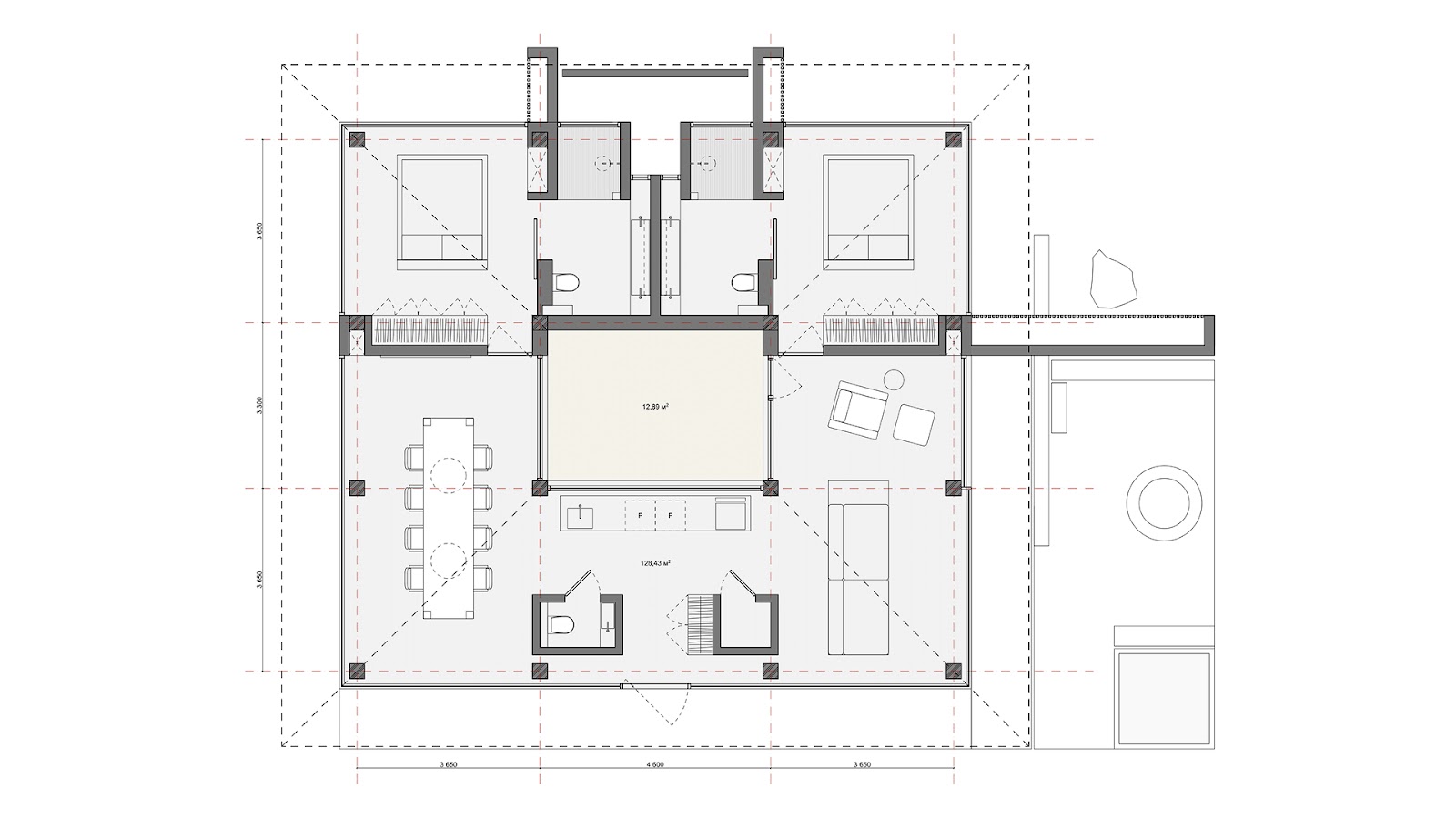
Each aspect of the villa — from the iconic ironwood roof to the open-space central hall — invites a sense of rootedness and introspection. Whether used as a private residence, a boutique rental, or a retreat space, the villa’s natural integration with the surrounding jungle creates a deeply immersive experience. The property currently spans 400 square meters of land, offering ample room for privacy and landscape.
Inside the Property
ROOTS Villa 1 is a masterclass in spatial storytelling — designed not just for living, but for presence. Its layout is inspired by the traditional Javanese Joglo, reinterpreted through a contemporary lens.

The central living area is an open-plan volume crowned by a double-height ironwood ceiling, honoring local craftsmanship while evoking calm and spaciousness. This communal heart sets the emotional rhythm of the home, beginning from the shaded wooden parking area and ceremonial entry through a bamboo-stone garden bathed in skylight.

Nearly every room opens directly onto lush greenery, private patios, or garden spaces, blurring the lines between indoors and out. Social and private zones are thoughtfully separated to ensure both connection and retreat. The result is a villa that feels rooted in its natural context while offering global sophistication. The building’s total enclosed area is 161 square meters, complemented by an 11.2-meter private pool.
Key spatial and layout features include:
- Grand open-plan living area beneath the Joglo-style ironwood roof with exposed beams
- Island kitchen with monolithic painted MDF cabinetry and brushed stainless steel countertops — combining minimalist and industrial elements
- Seamless indoor-outdoor transitions from all major rooms
- Clear zoning between shared and private areas for comfort and privacy

Material palette & interior design highlights:
- Ironwood decking & ceiling: Dense, textured, and grounding — a tactile anchor for the entire home
- Black veneer finishes: Custom vertical furniture that nods to Balinese wood carving traditions with a modern silhouette
- Painted MDF cabinetry: Matte surfaces in kitchen and storage areas that visually dissolve, letting space and light take focus
- Gray marble tile flooring: Cool underfoot and reminiscent of Bali’s volcanic stone
- Concrete-effect plaster walls: Soft, light-reactive surfaces that act as an architectural canvas
- Stainless steel accents: Found in kitchen and bathrooms, offering a clean, modern contrast to organic textures

ROOTS Villa 1 isn’t just a residence — it’s a living gallery where every finish tells a story, and every spatial element invites stillness, reflection, and connection with the land.
Location Overview
ROOTS Villa 1 is not in Bali — it is Bali.
Located in the heart of Ubud’s flourishing green belt, this villa is surrounded by rice terraces, jungle canopies, and spiritual energy — the very essence that made Bali iconic. Unlike the overdeveloped coastlines of Canggu and Seminyak, this pocket of central Bali remains unspoiled, offering a rare blend of authenticity and premium appeal.

What’s around:
- 10 minutes to Ubud center, home to art galleries, organic markets, and yoga schools
- 15 minutes to Tirta Empul and other sacred temples
- 45 minutes to Mount Batur and sunrise treks
- 90 minutes to Ngurah Rai International Airport
The area is quickly becoming a magnet for upscale digital nomads, eco-conscious travelers, and wealthy European expats looking for more than a beach holiday — they’re seeking meaning, quiet, and renewal.
That’s what ROOTS offers: an anchor in nature, with all the promise of Bali’s next wave of high-end tourism.

About the Developer
Jaya Eka Persada (JEP) is more than just a construction firm — it’s a full-cycle development powerhouse trusted by Bali’s leading investors and developers. What sets JEP apart isn’t just experience — it’s ownership at every stage of the process.
Why investors trust JEP:
- Full design–build–deliver cycle under one roof
- In-house architectural bureau (officially recognized in Indonesia)
- Own furniture manufacturing and 300 m² showroom in Kerobokan
- Internal project management and supervision — from blueprint to handover
- Property management services for rental-ready handoff
- Direct supply chains from Indonesia and China with in-house quality control (via Woodara)
JEP has grown from craftsmen on the ground into orchestrators of million-dollar projects. They understand that in Bali’s fast-growing market, beautiful isn’t enough — reliable is what matters. With proven timelines, transparent budgeting, and a finish-first philosophy, JEP ensures every property is delivered as promised.
“In Bali, you can build fast. Or you can build well. To do both — you need to be the architect of every process. That’s who we are.” — JEP
Construction Quality
Crafted, not just constructed.
ROOTS Villa 1 is built using the standards of boutique hospitality, not conventional villa building. Every join, tile, and finish has been selected for longevity, visual harmony, and tactile satisfaction. This is where Japanese precision meets Balinese soul.

Construction standards & highlights:
- Foundation: Deep reinforced concrete foundation for slope stability and seismic resistance
- Structural system: Ironwood pillars with metal I-beam reinforcement — the durability of steel with the elegance of wood
- Wall system: Double-brick cavity walls for insulation, moisture resistance, and acoustic comfort
- Roofing: Galvalume roof with heat-insulating layer and custom water drainage
- Electrical & plumbing: Certified according to Indonesian code, with EU-standard fittings and built-in smart home compatibility
Moisture, mold, and tropical challenges — addressed upfront:
- External walls treated with water-resistant compounds
- All wood kiln-dried, treated, and installed with ventilation spacing
- Wet zones (bathrooms and kitchen) waterproofed with two-layer German sealants
- Integrated airflow design — natural cross-ventilation plus ceiling fans, reducing dependency on AC
The developer provides a 3-year structural warranty and a 1-year interior finishing guarantee — a testament to long-term quality. This is not a villa that needs fixing in a year. It’s built for the long term — just like your investment.
Construction Progress
Already rising from the ground.
The development site for ROOTS Villa 1 has been fully acquired, and site preparation is now beginning. This includes land clearing, boundary setting, and soil studies in preparation for foundation work. Construction will proceed in stages, with regular updates shared via the Binaryx platform as progress unfolds.
Regular updates with photo/video documentation will be available to investors very soon. All work is managed on-site by JEP’s internal construction team, not outsourced.
This means no delays from third-party bottlenecks — and no surprises.
ROOTS Villa Investment Details
Sale starts May 22, 2025, at 17:00 UTC
ROOTS Villa 1 is the first boutique villa in a new, thoughtfully designed complex in Ubud, Bali. The land is bought and villa is now under construction, and tokenized ownership will be opened to the public on May 22.
We are raising $303,000 during the construction phase. Once completed, the villa is expected to generate strong short-term rental income thanks to its prime location and design. And the appreciation of the villa will hit $353,000 after the construction is completed.
Leasehold Ownership Secured
Unlike most villas in Ubud, ROOTS Villa 1 will be available for fractional investment under a 29-year Leasehold title with a 10 year extension, providing long-term stability and legal clarity for international investors.
Leasehold grants temporary rights on the land and property in Bali, so it feels more like a rent. Though, 90% of land deals in Indonesia are done under a Leasehold agreement, so there is nothing to worry about. You can learn more about these legal differences in our guide on Indonesian property rights.
Dynamic Token Pricing: Two Investment Phases
Just like other tokenized real estate projects on the Binaryx Platform, ROOTS Villa 1 follows a two-phase pricing model with gradually increasing token prices. Early participants benefit from the highest construction ROI and strongest rental APR potential.
Phase 1 Metrics
Launch: May 22, 2025
Total to raise: $116,723 (39% of full funding)
Phase 2 Metrics
Starts: Immediately after Phase 1 closes (usually 30 days)
To raise: $186,277
Get Ready to Invest
The sale hasn’t started yet — but you can prepare in advance and secure your early entry spot for the best ROI. Here’s how:
✅ Top up your wallet in USDT (Polygon or Tron).
✅ Follow our top-up guide or contact our Telegram support: @sales_binaryx.
✅ Set a reminder: May 22, 17:00 UTC
✅ Log in to the Binaryx Platform → “Construction” section
✅ Refresh the page after countdown ends and click “Invest”
ROOTS Villa 1 Token Sale Starts:
🗓️ May 22, 2025 (Thursday)
🕔 17:00 UTC/GMT
About Binaryx Platform
Binaryx platform is a tokenized real estate platform operating under Wyoming’s digital asset legislation (W.S. SF0038). For every property, Binaryx forms a dedicated LLC in the U.S., which legally owns the real estate. When you buy tokens, you become a co-owner of that LLC — meaning your ownership is legally protected under U.S. law.
Want to learn more about Binaryx? Check out these articles:
Articles you may be interested in





.jpeg)





-min.jpeg)


.webp)